Skip to content
Craig Race
Architecture
Home
About
Work
News
Blog
Contact
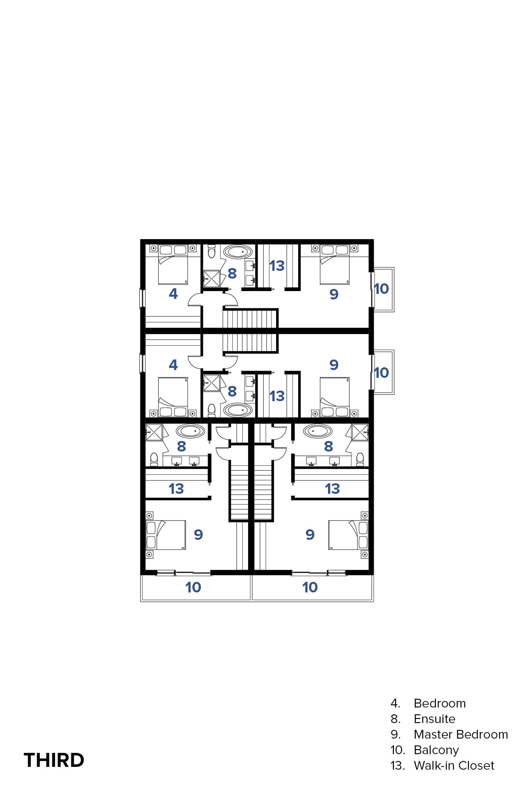
174 Church Plan4
INSTAGRAM FEED
@craigitect
We’re excited to share some highlights from our re
A look at our preliminary schematic design options
Join us in congratulating Ron Adriano on becoming
Throwback to our TERRAGON VILLAGE MULTIPLEX! From
Follow on Instagram